JSS-12A時間繼電器用途
JSS-12A時間繼電器用于電力系統繼電保護、控制回路或工業控制的直流、交流電路中作為延時控制元件之用。尤其適用于時間測量精度要求高,配合時間級差小的場合。
JSS-12A時間繼電器產品型號
1 型號含義

2.產品型號及分類規格對照表

JSS-12A時間繼電器工作原理
繼電器原理框圖見圖1 。

本繼電器為靜態型數字式時間繼電器,采用進口CMOS集成電路構成,利用分頻、計數原理實現延時。標準時鐘脈沖由石英晶體振、蕩器產生。
繼電器一旦施加額定電壓,內部瞬動繼電器動作并出口,同時使晶體起振,產生時鐘脈沖,經分頻后計數器計數,當所計脈沖數達到延時整定值時,觸發器翻轉,驅動執行繼電器動作出口。
JSS-12A時間繼電器使用方法
1.動作時間整定同由獨立的兩組三位8421碼拔盤開關和一位DIP五檔小開關相互配合而成, 其整定公式為:t= kT(s)(其中k為 DIP五檔小開關的整定系數, T為拔盤開關的整定數字)。例如:k為
0.01,T為357 ,則整定時間為0.01x357=3.57(s)。
2.由于本產品延時精確,最小延時整定值為20ms,因而希望控制本產品輸入激勵量的觸點無抖動,如使用于輸入激勵量有抖動的場合, 用戶須提出特殊訂貨要求。
JSS-12A時間繼電器主要技術參數
1 動作電壓
a)輸入為直流時,繼電器的動作電壓為(60%-70%)額定值,小于50%額定值可靠不動作
b)輸入為交流時,繼電器的動作電壓為(60%-80%)額定值,小于50%額定值可靠不動作。
2.返回電壓
a)輸入為直流時,繼電器的返回電壓應不小于10%額定值;
b)輸入為交流時,繼電器的返回電壓應不小于15%額定值;
3 延時一致性在基準條件下:
a)輸入為直流時, 一致性不大于(0.1%整定值+3ms);
b)輸入為交流時, 一致性不大于(0.1%整定值+10ms)。
4.延時整定誤差在基準條件下:
a)輸入為直流時,整定誤差不大于(0.1%整定值+3ms);
b)輸入為交流時,整定誤差不大于(0.1%整定值+10ms)。
5.返回時間誤差
在基準條件下:
a)輸入為直流時,返回時間不大于20ms;
b)輸入為交流時,返回時間不大于25ms。
6.功耗在額定電壓下,繼電器功率消耗不大于10W。
7.觸點性能
在電壓不超過250V,電流不超過1A,時間常數為5ms±0.75ms直流電路中, 斷開容量為30W;在電壓不超過250V,電流不超過5A,功率因數為cosφ=0.4±0.1的交流電路中, 斷開容量為250VA。繼電器的電壽命為104次。
8.工作條件
a)使用地點不允許有爆炸危險的介質,周圍介質中不含有腐蝕金屬和破壞絕緣的氣體及導電介質,不允許充滿水蒸汽和有較嚴重的霉菌存在;
b)使用地點不允許有較強的振動和沖擊;
c)使用地點應具有防御雨、雪、風、沙的設施;
d)使用地點不允許超過1.5mT的外磁感應強度。
9.介質強度
繼電器各導電路對外露的非帶電金屬部分及外殼之間,應能承受2kV(有效值)輸入電路配點之間應能承受1kV(有效值) , 50Hz的交流試驗電壓,歷時1min試驗 ,而無絕緣擊穿閃絡現象。
10.抗干流性能
繼電器應能承受頻率為1MHz衰減震蕩波,第一個半波電壓幅值共模為2.5kV,差模為1kV的試驗電壓,繼電器不應誤動或拒動。
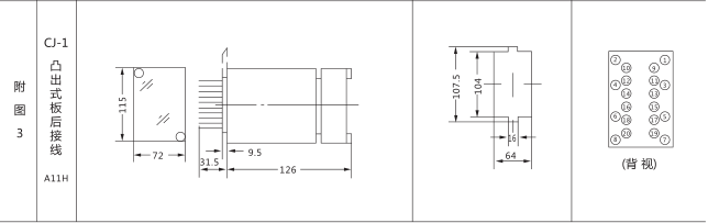
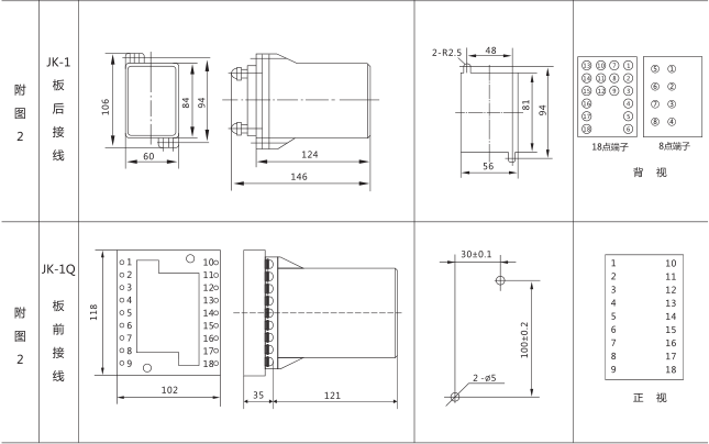
JSS-12A時間繼電器背后接線圖及外引接線圖(背視圖)

JSS-12A時間繼電器外形尺寸及安裝開孔尺寸







時間繼電器系列
打印當前頁
發郵件給我們: 1932551438@qq.com
手機: 18930817953




