JZ-S-344MT中間繼電器開孔尺寸及技術條件-上海上繼科技有限公司
發表時間:2019-08-14 09:18 瀏覽次數:692 〖返回〗
一、JZ-S-344MT跳位、合位、電源監視中間繼電器
技術條件
1、環境基準條件
環境溫度: 20°C±2°C
相對濕度: 45%~75%
大氣壓力:801Kpa~106Kpa
存儲和運算過程中的機械溫度: -25°C~+75°C
使用地點的海拔高度:不高于2500米
使用環境的周圍介質無爆炸危險品:不含有席蝕性氣體;所含導電塵埃的濃度不應使絕緣水平降低到允許值以下。
2、正常使用
環境溫度:-25°C~+40°C
環境相對濕度:不大于90%
大氣壓力:801Kpa~106Kpa
3、繼電器額定值 工作電流:5mA不帶輔助電源;工作電壓范圍80VDC~300VDC,(二組觸點可降低到50VDC~300VDC)
4、觸點容量:DC110V, 0.5A
5、保持值:50V~300V(002型)、80V~300V(220型或202型)
6、功耗:220VDC下**功耗≤1.1W
7、絕緣電阻:用1000V揺表測量各引出端子對外殼鎖緊螺釘之間絕緣電阻不小于10MΩ
8、絕緣耐壓:各引出端子對外殼鎖緊螺釘能承受工頻2000V,同組觸點之間能承受工頻500V, 歷時一分鐘試驗,無擊穿。
9、電壽命:DC110V, 50mA,104次以上。
10、機械壽命:觸點無負荷300萬次以上。
二、JZ-S-344MT跳位、合位、電源監視中間繼電器
型號命名及含義

三、JZ-S-344MT跳位、合位、電源監視中間繼電器
內部接線圖

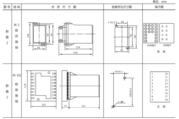
四、JZ-S-344MT跳位、合位、電源監視中間繼電器
外形尺寸及開孔尺寸

五、JZ-S-344MT跳位、合位、電源監視中間繼電器
主要性能
采用高性能密封進口小型中間繼電器:防潮、防塵、不斷線、可靠性高。
動作電壓準確,返回系數高,無抖動,功耗低,多個接點同時動作或返回(可控性100%) 。
繼電器動作后有燈光指示、電源指示。
繼電器的電器壽命和機械壽命長。
絕線耐壓水平高,觸點接觸電阻小。
抗干擾特性好,可使用于強干擾或電源電壓質量很差的場所。
工作電流極小(≤2mA) ,工作電壓范圍較寬50V~300V(002型或202型) 。
上海上繼科技有限公司(專注中間繼電器生產廠家)銷售熱線:021-57233089 QQ:1932551438





