JZJ-417靜態中間繼電器主要性能及開孔尺寸-上海上繼科技有限公司
發表時間:2019-08-01 13:45 瀏覽次數:670 〖返回〗
一、JZJ-413靜態中間繼電器
型號含義
靜態中間繼電器有JZJ(HZJ)、JZY(HZY)、JZL(HZL)、 JZB (HZB)、JZS(HZS)等型號
其中,JZ和HZ表示靜態中間繼電器。第三位字母:J表示交流工作電壓,Y表示直流工作電壓,L表示電流工作,B表示帶保持,S表示帶延時)
隨著繼電器所用場合的不斷增加,繼電器的工藝也在不斷改進,靜態中間繼電器也逐漸朝著輕巧,安裝方便的方向發展。RZY、RZYJ、RZF、RZE系列歐規標準的導軌式靜態中間繼電器,殼體體積小,重量只有200-350g、可無限拼裝,觸點易于擴展,可直接安裝在開關柜35mm導軌條上,從而提高了安裝密度,方便接線。
二、JZJ-413靜態中間繼電器
電磁兼容
A,震蕩波抗擾度檢驗符合IEC60255-22-1:1988的規定:III級;
B,靜電放電抗擾度檢驗符合IEC60255-22-2:1996的規定:III級;
C,射頻電磁場輻射抗擾度檢驗符合IEC60255-22-2:1989的規定:III級;
d,電快速瞬變脈沖群抗擾度檢驗符合IEC60255-22-4:1992的規定:IV級;
e,浪涌抗擾度檢驗符合IEC60255-22-5:2002的規定:III級;
f,射頻傳導抗擾度檢驗符合IEC60255-22-6:2001的規定:III級;
g,工頻抗擾度檢驗符合IEC50255-22-7:2003的規定:A級;
h,工頻磁場抗擾度檢驗符合IEC61000-4-8:1993的規定:V級;
i,脈沖磁場抗擾度檢驗符合IEC61000-4-9:1993的規定:IV級;
j,阻尼震蕩磁場抗擾度檢驗符合IEC61000-4-10:1993的規定:IV級;
K,諧波電流發射限值檢驗符合IEC61000-3-2:2001的規定:A級;
l,電壓波動和閃爍的限制檢驗符合IEC61000-3-3:1994的規定;
m,傳導發射限值檢驗符合IEC60255-25:2000的規定。
三、JZJ-413靜態中間繼電器
內部接線圖及外引接線圖

四、JZJ-413靜態中間繼電器技術條件
1、環境基準條件
環境溫度: 20°C±2°C
相對濕度:45%~74%
大氣壓力:80Kpa~106Kpa
2、正常使用條件
環境溫度:-25°C~+40°C
環境相對濕度:不大于90%
大氣壓力:80Kpa~110Kpa
存儲和運輸過程中的極限溫度: -25°C~75°C
使用地點的海拔高度:不高于2500米
使用環境的周圍介質無爆炸危險品;不含有腐蝕性氣體;所含導電塵埃的濃度不應使絕緣水平降低到允許值以下。
3、 繼電器額定值 額定電壓值:48V, 110V, 220V, AC, DC, 380VAC。
4、觸點容量 在電壓不大于250V,功率因數cosΦ為1.0的交流電路中,可分斷10A。
直流:普通型:接通DC220V, 10A;斷開DC220V,τ=5mS, 50W負載。
B型:接通DC220V, 10A;斷開DC250V, τ=5mS, 500W大容量角空點,極限容量為1500W。
5、 保持值 0.7 ~ 1.2倍額定電壓 JZ-系列快速中間繼電器動作時間和返回時間不大于15mS。
6、 功耗 在額定電壓下不大于6W。
7、絕線電阻 用1000V揺表測量各引出端子對外殼鎖緊螺釘之間絕緣電阻不小于10MΩ。8絕緣電壓 各引出端子對外殼鎖緊螺釘能承受工頻2000V,同組觸點之間能承受工頻1000V,歷時一份鐘試驗,無擊穿。
8、電壽命 A型: DC250V回路,切斷電流,τ=5mS, 50W, 10?次以上;
B型: DC250V回路,切斷電流τ=5mS, 500W, 104次以上; 1500W, 103次。
9、機械壽命 觸點無負荷300萬次以上。
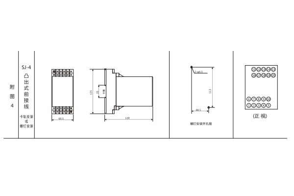
五、JZJ-413靜態中間繼電器
外形及開孔尺寸

上海上繼科技有限公司(專注中間繼電器生產廠家)銷售熱線:021-57233089 QQ:1932551438
(以上內容僅供參考,上海上繼科技有限公司有最終解釋權}
更多繼電器精彩文章→JZY-31中間繼電器接線圖及開孔尺寸





