JSG-B閃光繼電器參數及接線圖-上海上繼科技有限公司
發表時間:2019-07-06 10:59 瀏覽次數:1223 〖返回〗
一、JSG-B閃光繼電器的結構特點
本繼電器采用進口集成電路等電子元器件,閃光頻率穩定,不受閃光路數的影響;既可啟動LED節能型信號燈,又可啟動常規白 熾燈型信號燈;功耗小、工作可靠,啟動電流范圍寬,是目前電力系統中理想的更新換代產品。 JSG系列閃光繼電器外引腳功能圖(見圖2)

注:本繼電器DC220V匹配信號燈內阻為15kΩ~20kΩ
DC110V匹配信號燈內阻為5kΩ~10kΩ
DC48V匹配信號燈內阻為2kΩ~4kΩ
二、JSG-B閃光繼電器的接線圖

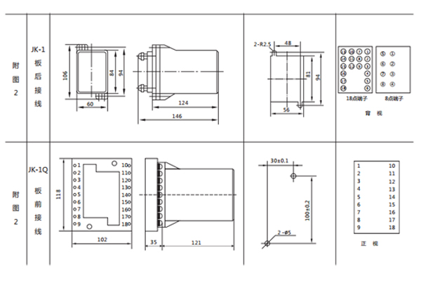
三、JSG-B閃光繼電器的開孔尺寸
JSG-B采用JK-1殼體,如圖所示

四、JSG-B閃光繼電器的參數
1、閃光頻率:60±10次/分。
2、最小啟動電流:0.01A,**穩定電流:2A
3、功率消耗:
a、工作回路功率消耗:DC48V時≤1.5W;DC110V時≤3W;DC220V時≤5.5W
b、啟動回路功率消耗:啟動直流電流為2A時≤5.5W。
4、繼電器的啟動和執行由小型大功率繼電器完成。
公司介紹:上海上繼科技有限公司是一家專業從事電力系統繼電保護及智能電網電力自動化產品的研發、設計、生產、銷售和服務為一體的高科技公司。擁有資深繼電保護專家團隊和國內**的檢測儀器及校驗設備。同時還引用國內外先進技術,來進行技術創新。本公司的產品廣泛用于電力、工礦、鐵路、建筑等國家重大工程輸配變電系統上,產品遠銷東南亞及中東地區。產品通過國家繼電保護及自動化設備質量監督檢驗中心檢測,獲得ISO-9001:2000國際質量體系認證?!翱萍紕撔拢\信務實”是公司的經營理念,本公司以高超的技術支持和對用戶高度負責的售后服務贏得了輸配電成套企業的信賴,且樹立了良好的信譽。
上海上繼科技有限公司(專注電力保護繼電器生產廠家)銷售熱線:021-57233089 QQ:1932551438
{以上內容僅供參考,上海上繼科技有限公司有最終解釋權}
更多繼電器精彩文章——JX-3/1閃光繼電器開孔尺寸及參數
- 上一篇:JSG-A閃光繼電器原理及參數
- 下一篇:JSG-C閃光繼電器原理及開孔尺寸





