DLS-32A雙位置繼電器的接線圖及開孔尺寸-上海上繼科技有限公司
發表時間:2019-07-01 13:50 瀏覽次數:851 〖返回〗
一、DLS-32A雙位置繼電器的結構
產品由兩個相互聯接的電磁機構、互鎖滑塊機構、位置指示器及觸點系統組成。每個電磁機構由磁軛、線圈及銜鐵組成,互鎖滑塊機構由兩個滑塊及拉簧組成。
二、DLS-32A雙位置繼電器的介質強度
產品各導電電路連在一起對外露的非帶電金屬零件或外殼之間,以及線圈電路對觸點電路之間,應能承受2kV(有效值) , 50Hz的交流試驗電壓歷時1min的試驗,而無絕緣擊穿或閃絡現象。
三、DLS-32A雙位置繼電器的觸點性能
產品觸點應能斷開電壓不超過250V,電流不超過1A,容量為50W的直流有感負荷電路(時間常數為5±75ms) ,或電壓不超過250V,電流不超過3A,容量為250VA的交流電路(功率因數為0.4±0.1 ) 5000次。
四、DLS-32A雙位置繼電器的使用條件
1使用地點周圍環境溫度為-25~40°C;
2使用地點的大氣壓力為80~106kPa(海拔高度為2km及以下)
3使用地點周圍空氣相對濕度不大于90% ( 25°C) ;
4安裝位置偏高其安裝垂直面的任一方向不大于5°;
5輸入激勵量的變化范圍為100% ~ 110%額定値;
6使用地點不允許有較強的振動與沖擊 ;
7使用地點不得有爆炸危險的介質,周圍介質中不應含有腐蝕金屬和破壞絕緣的氣體及導電介質,不允許充滿蒸氣及有較嚴重的霉菌。
8使用地點應具有防御雨、雪、風、沙的設施;
9使用地點不允許有較強的外磁感應強度。
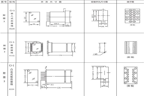
五、DLS-32A雙位置繼電器的接線圖

六、DLS-32A雙位置繼電器的開孔尺寸
DLS-32A雙位置繼電器采用A11殼體,如圖所示

上海上繼科技有限公司是一家專業從事電力系統繼電保護及智能電網電力自動化產品的研發、設計、生產、銷售和服務為一體的高科技公司。本公司擁有優越的地理環境和高超的技術支持,同時厲害不斷引進國內外的先進技術,進行技術創新,主要生產電力繼電器及微機綜合保護裝置,電力智能配電設備,變電站自動化監控系統。產品應用廣泛,銷路不僅遍布國內,還遠銷東南亞及中東地區。并且本公司的產品都是有硬核的質量保障。所以大家請放心購買。
上海上繼科技有限公司(專注電力保護繼電器生產廠家)銷售熱線:021-57233089 QQ:1932551438
{以上內容僅供參考,上海上繼科技有限公司有最終解釋權}
更多繼電器精彩文章——JPB-B數字式頻率繼電器的工作原理及接線圖





